În continuarea dezvăluirilor din Băile Herculane vom vorbi despre omul de afaceri, cu dublă cetățenie, română și franceză, Verbițchi Valeriu care, începând cu anul 2009, a investit în Băile Herculane. Interesant în cazul său este că, după ce a început să cumpere imobile, care se aflau în nefolosință și în stare de degradare, a început să reabiliteze clădirile, în timp ce autoritățile statului au tot încercat să blocheze orice inițiativă menită să ducă la dezvoltarea stațiunii.
Primul imobil cumpărat cu suma de 260.000 euro a fost Băile Neptun care datează din perioada Regimentului de Graniţă Austriac, fiind construit între 1883-1886, clădirea fiind realizată după planurile arhitectului Alpar. Al doilea imobil cumpărat cu suma de 250.000 euro a fost Pavilionul nr.5, fost „Spital pentru trupă şi subofiţeri, a fost ridicat între anii 1808-1810, destinaţia imobilului fiind aceea de spital militar pentru soldaţii şi subofiţerii Regimentului de Graniţă Austriac. De-a lungul timpului, clădirea a fost supusă unui proces de degradare. Următoarele imobile cumpărate au fost Ansamblul Cazinoului, cumpărat cu suma de 580.000 euro, care a fost construit între anii 1850-1900 după proiectul arhitectului Wilhelm Doderer, care a elaborat şi planurile Castelului Peleş. Clădirea se remarcă prin arhitectura porticurilor şi picturile murale, în special cele care împodobesc interiorul cupolei exterioare din faţa imobilului. Complexul Hotelier Apollo, cumpărat cu suma de 800.000 euro, ascunde o bază de tratament impresionantă, în care hidroterapia și curele balneare aveau loc într-un decor fabulos. Hotelul Hercules a fost cumpărat cu suma de 1.800.000 euro și hotelul Ferdinand cu suma de 250.000 de euro. În total, Verbișchi Valeriu a investit în Băile Herculane peste 4 milioane de euro, fără a pune la socoteală investițiile în reabilitarea de la Cazino, în valoare de peste 100.000 de euro.
Sunt demne de a fi puse în discuție toate dificultățile acestui investitor pe parcursul perioadei menționate, având în vedere faptul că încetul cu încetul clădirire de patrimoniu din Băile Heculane nu numai că se degradează dar, mai nou, au început să se prăbușescă, și aici mă refer la Băile Neptun, unde în urmă cu o săptămână s-a prăbușit şarpanta de la o intrare secundară şi zidul structural de sprijin, din spate, iar șarpanta turnului este grav avariată.
Clădirea a ajuns în proprietatea primăriei în urma unui schimb efectuat de către fosta administraţie şi Valeriu Verbiţchi. Acest schimb trebuia perfectat în două etape după cum urmează, conform Hotărârii nr. 177/2011 a Cosiliului Local Băile Herculane:
În prima etapă, primăria trebuia să primească în schimbul terenului de lângă Cazino numai clădirea Băile Neptun, iar în etapa a doua pentru a intra în proprietatea terenului de sub Băile Neptun, Primăria Băile Herculane trebuia să ofere la schimb un teren aflat sub Pavilionul 5. Dar, după perfectarea primei etape, primăria nu a mai demarat formalitățile pentru trecerea terenului de sub Pavilionul 5, din domeniul public în domeniul privat al statului, iar din această cauză schimbul cu terenul de sub Băile Neptun nu s-a mai putut perfecta.













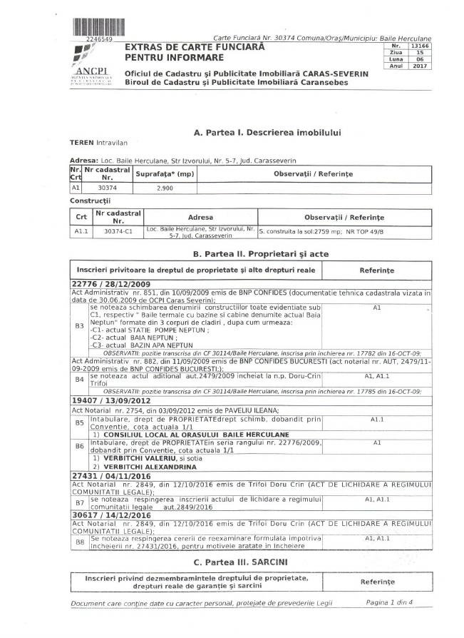
Conform Hotărârii nr.177/2011, Primăria Băile Herculane oferea soților Verbițchi următoarele imobile:
– terenul de 4002 mp, evidențiat în C.F. 30529 Băile Herculane aferent Complexului Cazino;
– terenul de 1313 mp, evidențiat în C.F. 30096 Băile Herculane aferent Pavilionul 5;
– terenul de 1800 mp, evidențiat în C.F. 30670 Băile Herculane aferent grădinii Pavilionului 5, în realitate 1557 mp conform C.F.
Soții Verbițchi ofereau la schimb terenurilor de mai sus următoarele imobile:
– terenul de 2900 mp, evidențiat în C.F. 30374 Băile Herculane aferent Băilor Neptun;
– clădirea Băile Neptun, evidențiat în C.F. 30374 Băile Herculane.
Primăria se ascunde sub paravul incompetenței și îl acuză pe proprietarul terenului că nu-și dă acordul pentru lucrări, în contextul în care terenul cu pricina era grevat de mai multe sarcini instituite de Parchetul de pe lângă Î.C.C.J – Birou teritorial Caraș-Severin. Primăria nu avea nevoie de acord pentru a reabilita clădirea, mai ales că are și astăzi soluția foarte simplă de a prelua terenul de sub Băile Neptun oferind la schimb, așa cum s-a angajat terenul de sub Pavilionul 5, devenind proprietară atât pe construcții cât și pe teren, ceea ce poate constitui o soluție viabilă pentru a putea obține fonduri europene.


Așa cum rezultă din Hotărârea nr. 171/2011 a Consiliului Local, etapa I-a și etapa II-a erau legate una de alta pentru a constitui un tot unitar și inseparabil din punct de vedere contabil.
Faptul că din anul 2012, când a fost adoptată Hotărârea nr. 59/2012 și până în anul 2017, adică pe parcursul unui interval de timp de circa 5 ani, orașul Băile Herculane nu a înterprins absolut nici un demers pentru trecerea în domeniul privat al statului a terenurilor care făceau obiectul schimbului în etapa a II-a, dovedește că administrația locală, prin anumiți membri ai consiliului local, a urmărit blocarea schimbului, fără a ține cont de faptul că, în acest fel, se blochează și procesul investițional al refacerii stațiunii Băile Herculane.
În data de 2 martie 2017, prin adresa de intrare cu numărul 7115 a Primăriei Băile Herculane, domnul Verbițchi Valeriu atrăgea atenția primăriei asupra faptului că imobilul Băile Neptun nu este protejat și întreținut, ceea ce, invitabil, va duce la prăbușire, fapt care ar putea compromite renovarea lui.





După această adresă din 2017, abia în 2018 primăria a alocat suma de 80.000 de lei pentru a reabilita acest imobil, dar nu și-a eliberat nici măcar ei autorizația de construcție pentru Băile Neptun, despre eliberarea unei autorizații pentru terțe persoane nici nu poate fi vorba! După catastrofa de acum o saptămână, primăria a putut să eliberaze de urgență acea autorizație de construcție. Deci, și în acest caz, putem constata că există atât rea-credință, cât și incompetență din partea Primăriei Băile Herculane.
Dar vom reveni cu noi date despre ceea ce se întâmplă în această stațiune.
Asa ceva nu este posibil, tot articolul e o facatura.
Cu totii stim ca toata coruptia este in Regat. Uitati-va la ce ne spun Ardelenii Coldea, Boc, Kovesi, Joianis, Rus, Lazar si ceilalti.